TOP

联系中心

日立电梯(中国)有限公司

一站式加装电梯 ·直达便捷幸福生活

日立电梯悉心了解客户及社会的期望,与建筑设计、建筑施工单位组建稳定的合作团队,为每个楼宇加装电梯提供贴心且值得信赖的合作方案。选择日立,您的出行将大不同。

首选品牌

多年蝉联政府采购旧楼加装电梯

3.9万+

日立电梯旧楼加装服务项目

加装电梯,您可能有这些困惑

邻居们年龄偏大,怎么高效跟好繁琐流程?

老楼公共空间少,怎么布置电梯更合理?

安装期间,怎么降低日常出入影响?

没有物业服务,怎么进行电梯管理?

我们能给您的支持

  • 一站式专业服务
  • 定制化加装方案
  • 优质的维保服务

日立电梯联动设计顾问公司、建筑施工团队,实现项目全过程管理,提供全过程无缝式服务。

  • 前期咨询

  • 现场勘测

  • 方案设计

  • 报批报审

  • 井道建设

  • 电梯安装

  • 按需保养

看看您的建筑适合哪种加装方案

凭借大量的服务经验,我们总结了老旧社区居住特点,推出了多样化加装方案、实用的井道材质、专用型的产品设计。

1. 为电梯寻找合适的安装位置
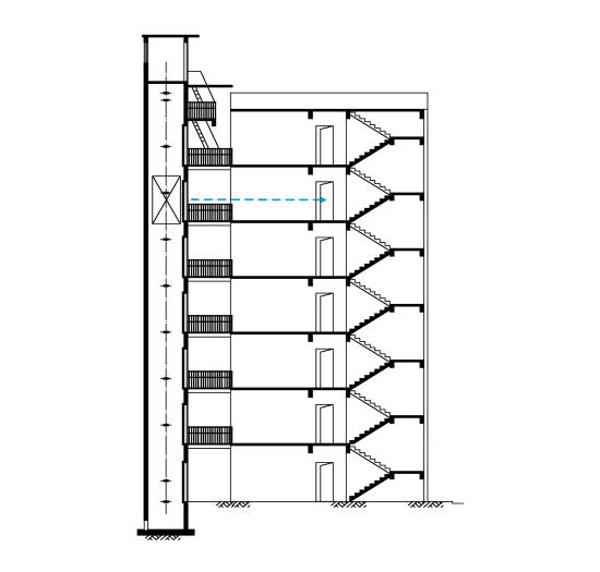
直平台式(平层入户)
直平台式(错层入户)
侧平台式(平层入户)
侧平台式(错层入户)
天井平台式
2. 为电梯井道挑选材质
纯钢筋混凝土
砖墙加混凝土圈梁
钢结构加钢化玻璃
钢结构加铝塑板
3. 无机房、有机房、积木式应该怎么选?
无机房
小机房
观光型
日立加装专用型LGE-E电梯

直平台式(平层入户)

平层入户是指电梯出入口位于楼梯平面,实现乘坐电梯直达指定楼层。直平台式(平层入户)可从住宅楼正面实现入户,要求建筑物的正面空间足够宽广,加装电梯后进出楼梯的距离满足相关安全走火通道等要求。

  • 侧视图

  • 俯视图

  • 侧视图(透视)

直平台式(错层入户)

错层入户又叫半层入户,即电梯的出入口位于楼梯的中转平台处(楼层半标高处),出电梯后需上或下半层楼梯进入居室。

以下示例为直平台式(错层入户)的介绍:

  • 侧视图

  • 俯视图

  • 侧视图(透视)

侧平台式(平层入户)

平层入户是指电梯出入口位于楼梯平面,实现乘坐电梯直达指定楼层。侧平台式(平层入户)适用于正面狭窄而侧面有广阔空间的建筑结构。

以下示例为侧平台式(平层入户)的介绍:

  • 侧视图

  • 俯视图

  • 侧视图(透视)

侧平台式(错层入户)

错层入户又叫半层入户,即电梯的出入口位于楼梯的中转平台处(楼层半标高处),出电梯后需上或下半层楼梯进入居室。

以下示例为侧平台式(错层入户)的介绍:

  • 侧视图

  • 俯视图

  • 侧视图(透视)

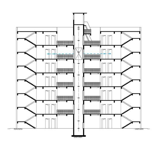
天井平台式

天井平台式即A和B两栋楼宇共用同一部电梯,通常适合于俩楼并排同向,且楼梯或楼层通道对称,电梯前后搭个连廊即可实现出入俩楼,是一种较常见的创新方法。

以下示例为天井式(平层入户+直平台)的介绍:

  • 侧视图

  • 俯视图

  • 侧视图(透视)

纯钢筋混凝土

纯钢筋混凝土比较牢固,后期维修成本低。

砖墙加混凝土圈梁

砖墙加混凝土圈梁比较牢固,后期维修成本低。

钢结构加钢化玻璃

钢结构加钢化玻璃井道施工周期短,采光好。

钢结构加铝塑板

钢结构加铝塑板施工周期短,井道自重轻。

无机房

无机房电梯无需在建筑物内设置封闭的独立机房,机房内设备在保持原有性能的前提下进行小型化设计并安装在电梯井道顶部或井道侧部。无机房电梯优势:节省空间,建筑成本更低,适合一般旧楼加装。

小机房

小机房电梯需在井道顶部预留与井道同面积的大小的机房, 机房内安装着电梯的动力系统、控制系统、电力系统。小机房电梯的优势:噪音更小,载重更大,更便于日常的巡查和维修。

观光型

观光型电梯井道及轿厢部分采用钢化玻璃,乘客在乘坐电梯时,可以观看轿厢外的景物,对建筑遮挡造成的采光影响也更少。

您的电梯维保,需要这些硬指标

创新性推出托管式服务,依托日立电梯ELECLOUD®云服务系统和MUG维保管理系统,实时守护电梯安全运行。

全天候智能监测

日立电梯通过大数据系统AI分析功能,提前分析出零部件检修时间,安排维保工程师排查处理,让电梯一直保持良好运转状态。

  • 60+

    数据类别

  • 300+

    监测数据点

  • 600+

    AI预诊断技术

更新改造,就选日立

日立半小时服务圈高效处理

每一位日立电梯维修工程师都配备ELECLOUD®移动终端,云服务中心根据模型合理推送指引,并确保在30分钟内*实现响应、分析与现场作业。
* 特殊情况除外

  • 90+

    分公司遍布全国

  • 1600+

    金牌维保服务站

  • 30min

    抵达困梯救援现场

半小时服务圈

定制化体检报告

日立电梯定期为客户提供专属的电梯体检报告,客户可通过电脑、手机等方式查看体检报告*情况,随时了解自己电梯的运行情况。

*根据电梯型号及使用情况,体检报告模板有所区别

电梯体检

为每一位用户购买电梯公众责任险

从2007年起,日立电梯为所有在保电梯购买电梯责任险或公众责任险,保障客户及每一位乘梯人的利益。

承包范围包括日立电梯(含各分支机构与工程公司)中国境内(港、澳、台除外)地区的电梯所有人、管理人签订的电梯安装、维修、保养、改造及保修期的电梯;负责承包范围内的第三者人身伤亡、财产损失。

加装日立电梯,您将收获更多!

客户成功案例

关注我们

日立电梯
订阅号

日立电梯
客户服务

日立电梯
家用电梯

日立电梯
视频号

日立电梯
抖音号

日立电梯
B站

日立电梯
京东商城

日立电梯
头条号